Elmhurst Residence
Chicago, IL.
Design | Lead
| • | Project Lead Landscape Architect |
| • | Developed 3 conceptual plans |
| • | Meet with clients during each phase of the project |
| • | Presentations |
| • | Landscape plans |
| • | Cost estimation |
| • | Construction details |
Chris Gent | Landscape Studio
Client: Private Residence
Date: 2013
Budget: $ 50,000
Design Firm: CG|LS
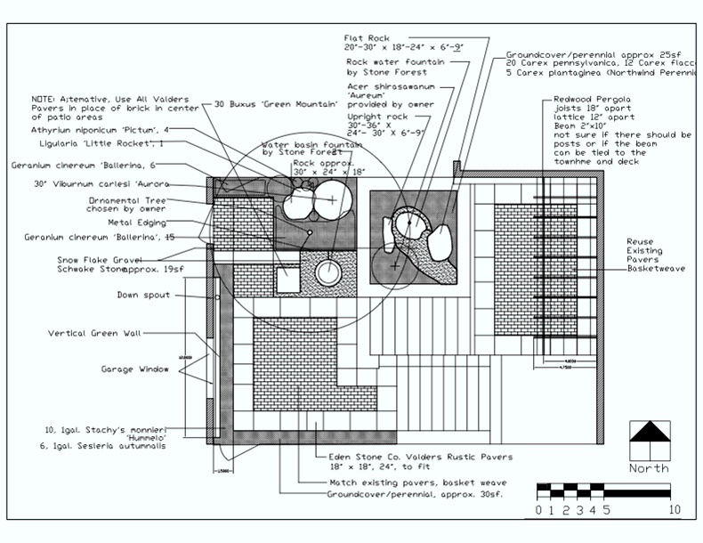
Downsizing from a much larger home in Elmhurst, the clients hired CG|LS to design an outdoor extension of their home for enjoying their morning coffee and entertaining friends. Three concepts were developed using a rich palate of warm paving materials, multiple levels for planting and use, a trellis to shade the walkout lower level, varied plant textures and colors, as well as a soothing water feature. The clients chose elements from each design that they liked and CG|LS wove them together creating a final design that met the clients’ goals of beauty, sustainability and use.







